SEONGNAM MUSEUM OF HISTORY
Seongnam, Korea, 2022
Location: Seongnam, Korea
Total Floor Area: 5,554 sqm
Program: Museum
A Museum, in-between
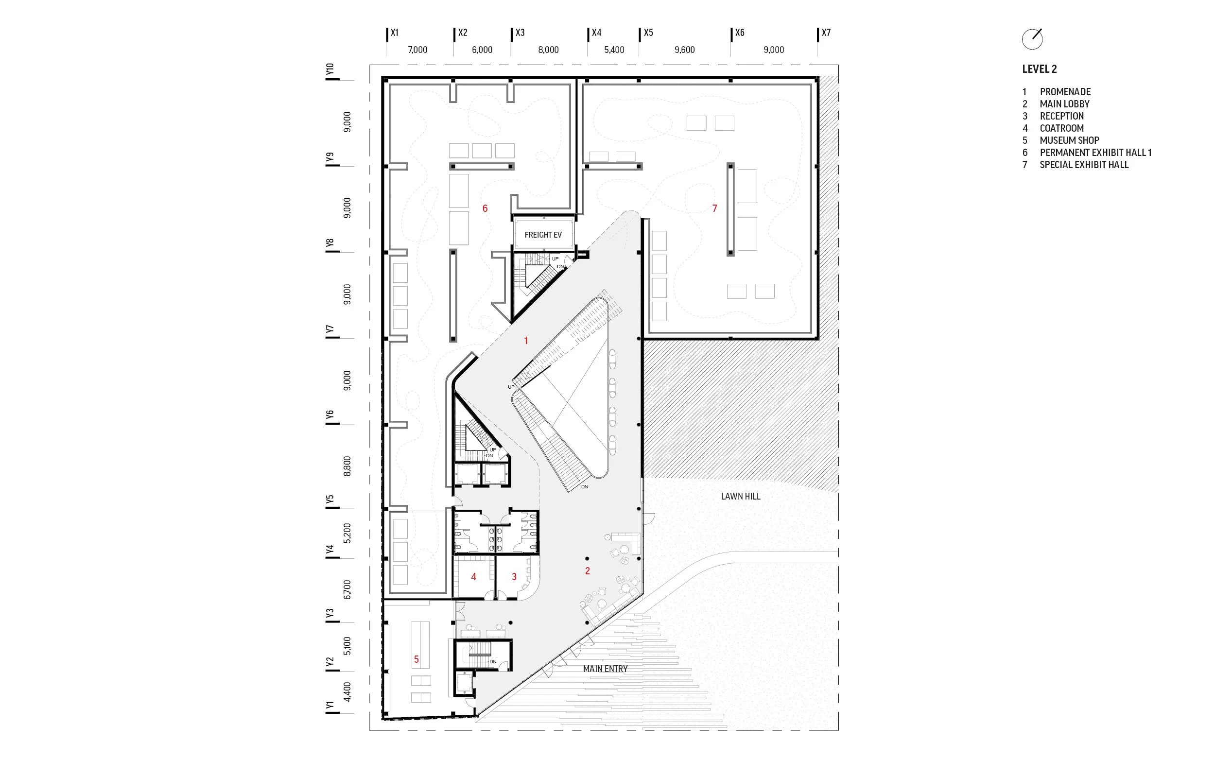
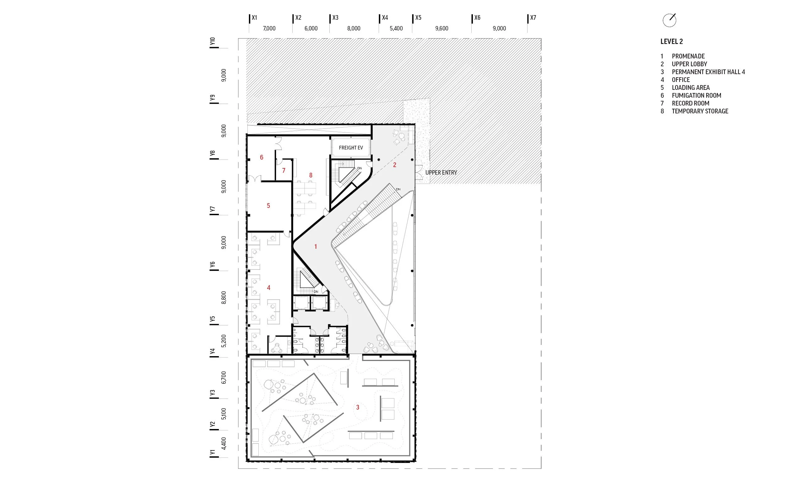
The First Industrial Park Community Park, created on the site that had long been the foundation of the local industry, has been transformed into a green space and cultural area for the citizens. The new museum to be built will serve an essential role as the final puzzle piece of the facilities within the park, reminding people of the meaning of history and conveying messages of healing and reconciliation. The site for the building is located at the intersection where the existing urban organization meets the new green space. The history museum we propose aims to faithfully play the role of a "space in-between" that embraces both the city and nature rather than becoming another heterogeneous artificial structure. The building geometry is designed to respect the existing greenery and topography and does not disrupt the flow of the park. The approach of bringing nature into the building was inspired by the image of embracing nature with open arms.

